Wohnen ohne Hindernisse Sanitärraumplanung
Es ist der Ort dem wir vertrauen und der uns am Herzen liegt. Das eigene Zuhause ist für die meisten so selbstverständlich, dass sich niemand vorstellen kann wie es sich anfühlt, wenn es unmöglich wird, darin zu wohnen. Eine Gesellschaft die immer älter wird wirft die Frage auf, wie wir bis ins hohe Alter in den eigenen vier Wände leben können. Wie bleiben wir möglichst lange selbstständig? Nun stehen Städteplaner, Ingenieure und Architekten vor der Herausforderung, das Wohnen und Bauen der Zukunft altersgerecht zu reformieren.
Wie lassen sich im Alter Stürze in den eigenen vier Wänden vermeiden? Wie lässt sich ambulante Pflege möglichst lange in der eigenen Wohnung umsetzen? Neben Stufen und Schwellen zählen auch kleine Bäder zu den typischen Problemzonen. Hinzu kommen schmale Durchgänge, die eine Nutzung von Rollator oder Gehhilfe erschweren.
Hürden nehmen
Barrierefreier Wohnraum kann daher eine langfristige Lösung sein. Gerade die Normenreihe DIN 18040 „Barrierefreies Bauen – Planungsgrundlagen“ bietet Spielräume, die von Planern und Baubehörden, aber auch von Herstellern und Industrie oft noch wenig genutzt werden. Richtig angewendet bieten sie viele Möglichkeiten, um Lösungen und innovative Produkte zu entwickeln.
Die DIN 18040, Teil 2, macht keine fixen Vorgaben, sondern definiert Schutzziele und lässt Planern und Bauausführenden Freiräume. Dabei unterscheidet die Norm zwischen barrierefrei nutzbaren Räumen sowie uneingeschränkt mit dem Rollstuhl nutzbaren Räumen. Grundsätzlich muss barrierefreies Bauen nicht gleich Kostensteigerung bedeuten. Bei kluger Planung steht sie nicht im Widerspruch zur Wirtschaftlichkeit.

Vorausschauend entwerfen
Schon im Neubau oder bei einer Komplettsanierung bietet es sich an, Voraussetzungen für ein rollstuhlgerechtes Bad zu schaffen. So sind nachträgliche Anpassungen schnell und einfach möglich. Wird ein bestehendes Bad an konkrete Einschränkungen angepasst, muss einzelfallbezogen geplant werden. Die Geberit Kompetenzbroschüre Sanitärraumplanung liefert dazu viele Anregungen und praktische Arbeitshilfen.

Für die Basis sorgen

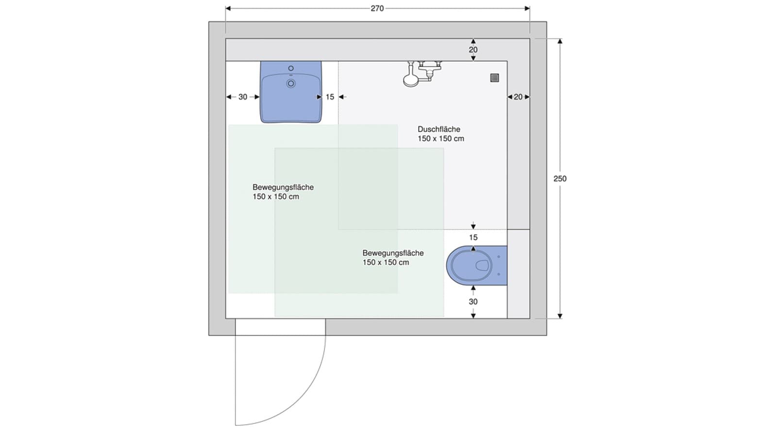
Wer einen guten Grundriss in Neubau oder Modernisierung plant, schafft die Basis für Barrierefreiheit. Die Norm fordert für ein barrierefreies Privatbad Bewegungsflächen von 120 x 120 cm vor jedem Sanitärgegenstand, für eine rollstuhlgerechte Ausstattung 150 x 150 cm – das bietet auch Pflegepersonen genügend Raum, um unfallfrei zu arbeiten. Da sich die Bewegungsflächen dabei überschneiden dürfen, kann zum Beispiel eine bodenebene Dusche in die Planung der Bewegungsflächen einbezogen werden, wenn sie keine oder eine bewegliche Abtrennung besitzt. Vorhandene kleinere Bäder bieten nicht immer die richtigen Voraussetzungen für eine barrierefreie Grundrissplanung. Bei einer umfangreichen Modernisierung in Privathäusern lohnt es sich daher zu prüfen, ob eine Wand versetzt oder das Bad in einen anderen Raum verlegt werden kann.
Auf Details achten



Dreh- und Angelpunkt im Bad ist der Waschtisch. Er muss im Sitzen auf einem Hocker oder im Rollstuhl nutzbar sein. Für Barrierefreiheit gibt die DIN 18040 eine Ausladung von 55 cm vor. Unterputz-Siphons schenken mehr Bewegungsfreiheit. Spezielle Keramikserien wie Renova Comfort besitzen die geforderte Tiefe sowie weitere Details, welche die Nutzung erleichtern. Dazu gehören Greifzonen unter dem Waschtischrand zum Heranziehen an das Becken, zum Niedersetzen oder Aufstehen. Durch seitlich an der Wand montierte Haltegriffe lässt sich die Unterstützung weiter ausbauen. Ablagebereiche für Kosmetikartikel im vorderen Bereich der Keramik sowie Armauflage- und Abstützbereiche sorgen für mehr Komfort. Für besondere Anforderungen etwa bei Demenz gibt es Waschtische mit optischer Signalisation für eine bessere Orientierung. Bei Waschtisch-Unterschränken empfehlen sich Modelle mit großen Komfortgriffen und zurückgesetzten Regalböden, die bei geöffneter Tür Beinfreiheit geben. Ein groß dimensionierter Spiegel, der mit der Waschtisch-Oberkante abschließt, lässt sich sowohl im Sitzen als auch im Stehen nutzen.
WCs anpassen


Wird das WC mit einem barrierefreien Montageelement mit Höhenverstellung und einem Stromanschluss versehen, lässt es sich leicht an verschiedene Bedürfnisse anpassen. Mehr Autonomie bei der täglichen Intimhygiene sowie eine echte Arbeitserleichterung für Pflegende bieten Dusch-WCs, die bei vorhandenem Stromanschluss leicht nachrüstbar sind.
Fehlt der Stromanschluss, kann er mit der Geberit Designplatte ohne sichtbares Kabel zum WC geführt werden. Bei der Nutzung mit einem Rollstuhl, muss eine Keramik mit größerer Ausladung sowie eventuell mehr Sitzbreite eingesetzt werden, die das Übersetzen vom Rollstuhl erleichtert. Spezielle WC-Sitze oder Sitzringe sind gegen seitliches Verutschen gesichert.

Vorteile erkennen
Bei der Badplanung im Neubau und der Komplettsanierung sollte die Barrierefreiheit immer eine Rolle spielen. Durch eine clevere Raumplanung und Vorwandinstallation lässt sich das Bad ohne Komfortverlust oder ästhetische Einschränkungen so vorbereiten, dass es sich später einfach anpassen lässt. In älteren Bädern, die keine entsprechende Vorbereitung besitzen, sind Anpassungen schwieriger und müssen individuell geplant werden.
Grundsätzlich ergeben sich durch barrierefreien Wohnraum aber nur Vorteile. Nicht zuletzt kann dadurch der Anteil ambulant versorgter Menschen erhöht – und damit die Kosten in Pflege und Gesundheitswesen gesenkt werden.


Rutschfeste Duschflächen bieten leicht zu installierende Lösungen für barrierefreie Duschbereiche.

Mit Duschrinnen und rutschhemmenden Fliesen lassen sich altersgerechte und komfortable Duschbereiche individuell gestalten.

Badewanne mit integrierten Haltegriffen und seitlicher Sitzfläche für Pflegepersonen.
Für Architekten, Planer und Architekturinteressierte Geberit eView Newsletter
Der Newsletter Geberit eView verschafft Ihnen Einblick in die spannendsten Referenzobjekte von Geberit.
Lassen Sie sich inspirieren von einzigartigen Projekten, informativen Experteninterviews und aktuellen Themen aus Architektur und Planung.
- Der Geberit eView Newsletter erscheint quartalsweise

Referenz-Magazin
Objekt-Magazin
