Geberit ProPlanner Planungssoftware für Installateure
Einfach, präzise und schnell planen
Geberit ProPlanner ist speziell auf die Bedürfnisse von Installateuren und Sanitärunternehmen zugeschnitten, die Sanitärinstallationen eigenständig planen.
Die Planungsmodule decken verschiedene Sanitärtechnologien ab – von der Planung von Installationssystemen über die Rohrdimensionierung bis hin zu hydraulischen Berechnungen.
Sobald Sie Geberit ProPlanner – unter Berücksichtigung der Systemanforderungen – installiert und sich zum ersten Mal registriert haben, erhalten Sie einen Lizenzschlüssel, mit dem Sie das Modul Installationssysteme nutzen können.
Detaillierte Informationen zur Installation und Registrierung von Geberit ProPlanner finden Sie im folgenden Dokument:

Gute Gründe für Geberit ProPlanner
Einfache Planung
Mit der Erstellung von Schemazeichnungen erhalten Sie eine vollständige Rohrdimensionierung und Materialliste für Ihr Projekt.
Präzise Berechnungen
Zuverlässige Berechnungen erfolgen automatisch auf der Grundlage des Geberit Know-hows.
Einfach zu bedienen
Die Benutzeroberfläche ist intuitiv zu bedienen und einfach zu erlernen.
Schnelle Erstellung
Zeichnungen lassen sich schnell erstellen und Berichte mit nur einem Mausklick generieren.
Verfügbare Planungsmodule
Installationssysteme
Das Modul ermöglicht eine schnelle, einfache und präzise Planung und Modellierung der Installationssysteme.
Funktionalitäten:
- Planung von Installationssystemen
- Berechnung gemäß Geberit Richtlinien und Vorschriften
- Neueste Bestimmungen und integrierte Geberit Produkte
- Automatische Ausgabe von Material-, Angebots- und Zuschnittlisten
- Automatische Ausgabe von Grundriss-, Aufriss- und Installationszeichnungen
- Exportfunktion für detaillierte 3D-Planung
- CAD-Export-Schnittstelle (Autodesk® RealDWG®)

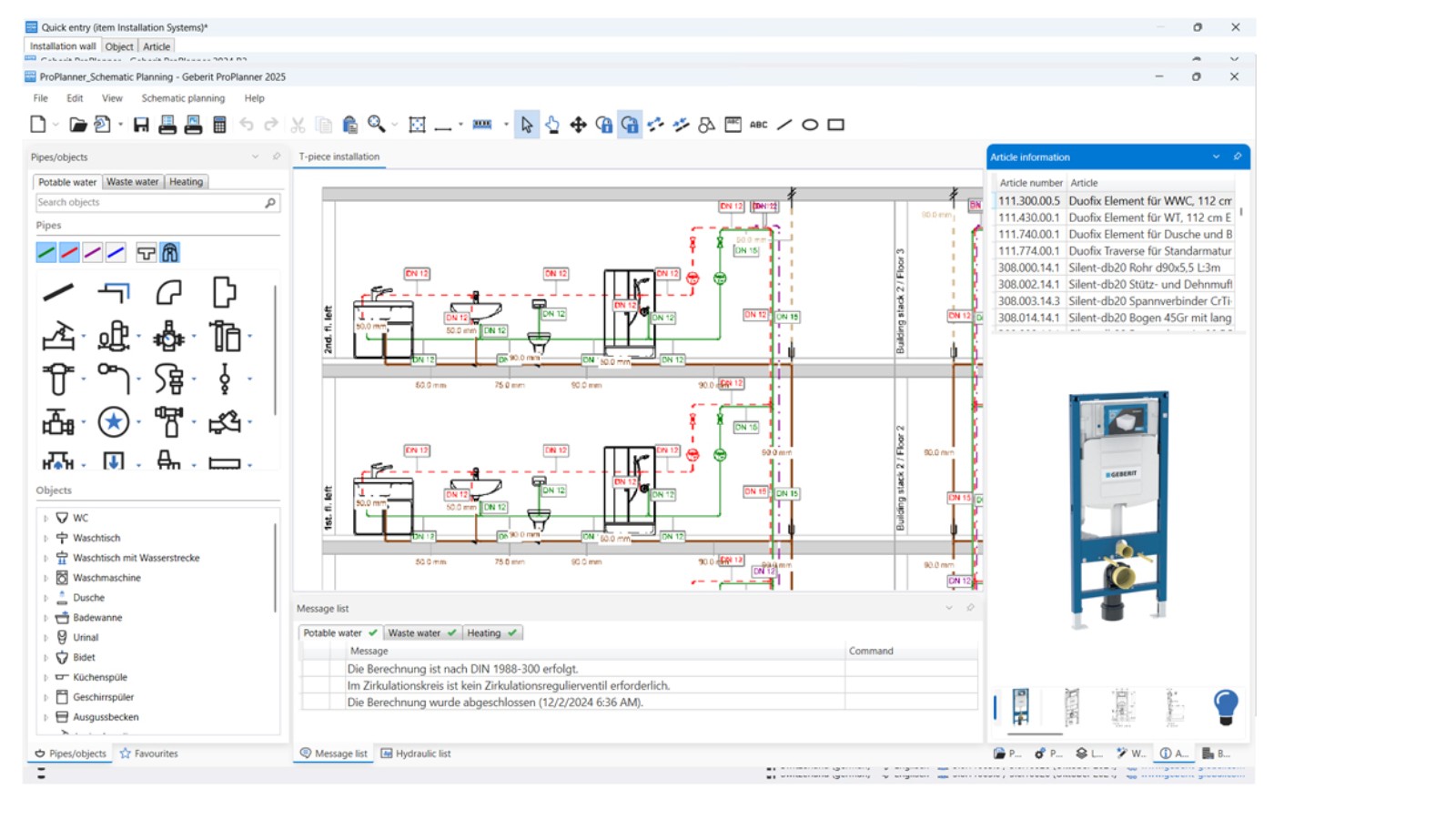
Schemaplanung
Das Modul ermöglicht die Planung von Rohrleitungssystemen basierend auf detaillierten Zeichnungen.
Funktionalitäten:
- Planung von Trinkwasser- und Abwassersystemen
- Berechnung gemäß länderspezifischen Standards
- Neueste Bestimmungen und integrierte Geberit Produkte
- Automatische Ausgabe von Material-, Hydraulik- und Angebotslisten
- Automatische Ausgabe von Schemazeichnungen
- CAD-Export-Schnittstelle (Autodesk® RealDWG®)

Detaillierte 3D-Planung
Das Modul ermöglicht eine umfassende 3D-Modellierung der Sanitärobjekte. Die Software gewährleistet ein korrektes Design.
Funktionalitäten:
- Planung von Installations- und Abwassersystemen
- Planung möglich in Grundriss, Aufriss und 3D
- Berechnung gemäß Geberit Richtlinien und Vorschriften
- Neueste Bestimmungen, Standards und integrierte Geberit Produkte
- Automatische Ausgabe von Material-, Angebots- und Zuschnittlisten
- Automatische Ausgabe von Grundriss-, Aufriss-, 3D- und Installationszeichnungen
- CAD-Import und -Export (Autodesk® RealDWG®)

Dachentwässerung mit Geberit Pluvia
Das Modul ermöglicht eine zuverlässige Planung der Rohrdimensionierung zur Dachentwässerung und damit eine optimierte Hydraulik.
Funktionalitäten:
- Isometrische Planung der Geberit Pluvia Dachentwässerung
- Berechnung gemäß länderspezifischen Standards oder Geberit Vorschriften
- Neueste Bestimmungen, Standards und integrierte Geberit Produkte
- Automatische Ausgabe von Material-, Hydraulik- und Angebotslisten
- Automatische Ausgabe von isometrischen Zeichnungen
- CAD-Import- und Export-Schnittstellen (Autodesk® RealDWG®)

Vorfabrikation von Entwässerungssystemen
Das Modul ermöglicht eine detaillierte Planung und 3D-Modellierung von Rohren und Fittings für Entwässerungssysteme.
Funktionalitäten:
- Planung von Entwässerungssystemen (Geberit PE und Geberit Silent-db20)
- Planung möglich in Grundriss, Aufriss und in 3D
- Automatische Ausgabe von Material- und Zuschnittlisten für Vorfabrikation von Rohren
- Automatische Ausgabe von Grundriss-, Aufriss-, 3D- und Installationszeichnungen
- CAD-Import und -Export-Schnittstelle (Autodesk® RealDWG®)

Systemanforderungen
Bitte überprüfen Sie vor dem Download der Planungssoftware, ob die Systemanforderungen erfüllt sind:
| Minimum | Empfohlen | |
|---|---|---|
| Prozessor | 1 GHz | 2.5 GHz |
| Arbeitsspeicher | 4 GB | 16 GB |
| Speicherplatz | 4 GB freier Speicherplatz | 6 GB freier Speicherplatz, SSD |
| Grafikkarte | Integrierte Grafik | Dedizierte Grafikkarte |
| Bildschirm | 1280 x 1024 | 1920 x 1080 |
| Betriebssystem | Von Microsoft unterstützte Windows 64Bit Desktop-Version | Neueste Windows 64Bit Desktop-Version |
| Online-Dienste | Internetverbindung E-Mail-Adresse | Internetverbindung E-Mail-Adresse |
Schulungsunterlagen und Seminare
Machen Sie sich mit den Funktionen von Geberit ProPlanner vertraut, durch unsere Schulungsunterlagen oder passenden Seminaren.
- Handbuch Funktionen Geberit ProPlanner (1.1 MB)
- Abwasservorfabrikation (5.5 MB)
- Dachentwässerung (4.4 MB)
- Detailplanung in 3D (9.0 MB)
- Installationssysteme (28 MB)
- Schemaplanung (15 MB)
Um die Module von Geberit ProPlanner noch effizienter nutzen zu können, bieten wir Ihnen sowohl spezielle Softwareseminare als auch individuelle Softwareschulungen an.
Häufig gestellte Fragen zu Geberit ProPlanner
Kann ich Berichte und Zeichnungen aus Geberit ProPlanner exportieren?
Ja, die Software ermöglicht den Export detaillierter Berichte, Materiallisten und Zeichnungen in verschiedenen Formaten zur Dokumentation und Weitergabe.
Enthält Geberit ProPlanner eine Datenbank mit Geberit Produkten?
Ja. Geberit ProPlanner bietet Zugriff auf eine aktuelle und umfassende Datenbank von Geberit Produkten, einschließlich technischer Spezifikationen und Details zur Installation.
Ist Geberit ProPlanner auch für Grossprojekte geeignet?
Ja. Die Software wurde dahin gehend entwickelt, dass Sanitärprojekte in allen Größen erstellt werden können – von kleineren Wohnbau- bis hin zu größeren gewerblichen Bauprojekten.
Weitere Tools für Sanitärprofis
Geberit ProPlanner Hotline
Montag bis Donnerstag: 08:00 - 16:00 Uhr
Freitag: 08:00 - 12:00 Uhr
Telefon: 07552 934-888
E-Mail: proplanner.support@geberit.com




